Баня-квадро-овалбочка «4×4.3» три помещения
723 990 ₽ 555 990 ₽
Баня-квадро-овалбочка «4×4.3» имеет три больших помещения и с легкостью может разместить компанию. В данной модели Вы можете организовать полноценное помывочное отделение. За счет формы баня обеспечит быстрый прогрев помещений даже зимой. Баня устанавливается бригадой сборщиков за один день.
-
Рассчитайте комплектацию и стоимость
Вы можете сделать точный расчет стоимости бани и сделать заказ самостоятельно. Нажмите на каждый пункт для выбора опций.
Выберите условия поставки
Выберите материал
Выберите планировку
Выберите вход
Выберите тип печи
-
Grill'D Bochky Short
В базовой комплектации. Grill’D Bochky Short с внутренней топкой. Загрузка - 40 кг камней. Сталь повышенной прочности
-
Печь не выбрана
Дополнительно к печи
-
Рассчитайте комплектацию и стоимость
Вы можете сделать точный расчет стоимости бани и сделать заказ самостоятельно. Нажмите на каждый пункт для выбора опций.
Выберите условия поставки
Выберите материал
Выберите планировку
Выберите тип печи
-
Grill'D Bochky Short
В базовой комплектации. Grill’D Bochky Short с внутренней топкой. Загрузка - 40 кг камней. Сталь повышенной прочности
-
Печь не выбрана
Дополнительно к печи
-
Баки и опции
-
Сетка для камней L700 с камнями. В базовой комплектации бани.
-
-
Баки и опции
-
Одностенная труба. В базовой конфигурации
-
-
Выберите окна
-
Окно 600х600
-
Окно в парилку 300х400
Выберите окна для установки в стене бани
Выберите входную дверь
-
Деревянная дверь 1640x605мм с окошком правая (петли справа)
-
-
Выберите межкомнатную дверь
-
-
Выберите межкомнатную дверь
-
Деревянная дверь 1640x605мм без окна
-
Деревянная дверь 1640x605мм без окна
-
-
Выберите дополнительные опции
-
-
Цвета кровли
- +
- +
- +
-
Светодиодная подсветка полков
-
Установка бани под наклоном
-
Индивидуальные изменения
-
Reset options
*Выберите комплектацию
-
Выберите цвет внешней обработки и количество слоев
Количество слоев внешней обработки
Цвет внешней обработки
Цвет торцов и наличников
-
Выберите цвет внешней обработки и количество слоев
Количество слоев внешней обработки
Цвет внешней обработки
Цвет торцов и наличников
Описание
- Еловый или кедровый профиль толщиной 42х92 мм, влажностью 10%
- Основание под баню (деревянные ножки)
- Обручи из нержавеющей стали с замками
- Внешняя обработка антисептиком в один слой (при поставке изделия в готовом виде или со сборкой на участке)
- Крыша из гибкой черепицы Döcke PIE или Технониколь. Цвет коричневый

- Дровяная печь Grill’D Bochky Short
- Пожаробезопасное многослойное основание-сэндвич под печь из нержавеющей стали, минерита и базальтового картона
- Защита от нагрева из минерита
- Камни для печи (в подарок)

- Дымоход в сборе
- Проходной узел под дымоход из нержавеющей стали, термоизоляции, резинового уплотнителя с хомутом

- Входная дверь деревянная 1640×605 мм с окном
- Стеклянная дверь в парилку
- Стеклянная дверь в моечное отделение
- Полки из липы или осины, согласно схемы расположения
- Трапик на пол из ели
- Окно 300х400 мм
- Светильник банный IP54
- Полки из липы или осины, согласно схемы расположения
- Трапик на пол из ели
- Стол
- Окно 600х600 мм
- Светильник банный IP54
- Розетка
- Выключатель
- Полки из липы или осины, согласно схемы расположения
- Трапик на пол из ели
- Светильник банный IP54
- Срощенный еловый профиль 40х88 мм, влажностью 10%
- Основание под баню (деревянные ножки)
- Обручи из нержавеющей стали с замками
- Внешняя обработка антисептиком в один слой (при поставке изделия в готовом виде или со сборкой на участке)
- Крыша из гибкой черепицы Döcke PIE или Технониколь. Цвет коричневый

- Дровяная печь Grill’D Bochky Short
- Пожаробезопасное многослойное основание-сэндвич под печь из нержавеющей стали, минерита и базальтового картона
- Защита от нагрева из минерита
- Камни для печи (в подарок)

- Дымоход в сборе
- Проходной узел под дымоход из нержавеющей стали, термоизоляции, резинового уплотнителя с хомутом

- Входная дверь деревянная без окна
- Деревянная дверь в парилку
- Деревянная дверь в моечное отделение
- Полки из ели согласно схемы расположения
- Трапик на пол из ели
- Светильник банный IP54
- Полки из ели согласно схемы расположения
- Трапик на пол из ели
- Стол
- Окно (стеклопакет, 60*60 см)
- Светильник банный IP54
- Розетка
- Выключатель
- Полки из ели согласно схемы расположения
- Трапик на пол из ели
- Светильник банный IP54
Детали
| Количество помещений | 3 |
|---|---|
| Длина козырька/крыльца | 200 мм |
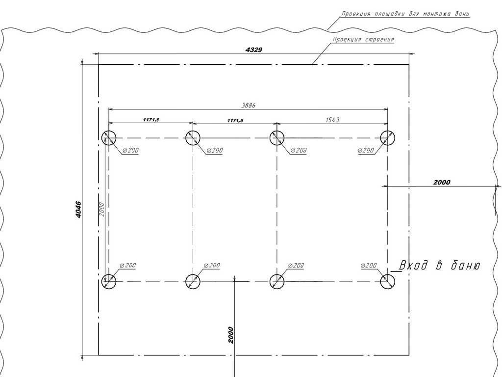
| Общая длина (наружный размер) | 4329 мм |
| Высота | 2620 мм |
| Ширина | 4103 мм |
| Вес | 2230 кг |




