Баня Квадро-Хаус «4×5» два помещения
1 044 510 ₽
Баня Квадро-Хаус «4×5» имеет два больших помещения и с легкостью может разместить компанию. В данной модели Вы можете организовать полноценную комнату отдыха. За счет формы баня обеспечит быстрый прогрев помещений даже зимой. Баня укомплектована мощной печью, спинками для полков, панорамными окнами и форточками. Устанавливается бригадой сборщиков за один день.
-
Рассчитайте комплектацию и стоимость
Вы можете сделать точный расчет стоимости бани и сделать заказ самостоятельно. Нажмите на каждый пункт для выбора опций.
Выберите условия поставки
Выберите материал
Выберите планировку
Выберите вход
Выберите тип печи
-
Grill’D Cometa Vega Window + проходной узел
Grill’D Cometa Vega 180 Window с внешней топкой. Русская парная. Масса камней наружной каменки – 75 кг. Масса камней внутренней каменки – 30 кг
Дополнительно к печи
-
Диаметр 250
Выберите окна
-
Баки и опции
-
Сетка для камней L700 с камнями. В базовой комплектации бани.
-
-
Выберите межкомнатную дверь
-
-
Выберите дополнительные опции
-
Цвета кровли
- +
- +
- +
-
Светодиодная подсветка полков
-
Индивидуальные изменения
-
Reset options
*Выберите комплектацию
-
Выберите цвет внешней обработки и количество слоев
Количество слоев внешней обработки
Цвет внешней обработки
Цвет торцов и наличников
Описание
- Еловый или кедровый профиль толщиной 42х92 мм, влажностью 10%
- Основание под баню из поперечных лаг 50х150 мм с возможностью последующего утепления (в случае не использования проливных полов)
- Пол из доски с возможностью замены
- Основание под баню (деревянные ножки)
- Внешняя обработка антисептиком в один слой (при поставке изделия в готовом виде или со сборкой на участке)
- Крыша из гибкой черепицы Döcke PIE или Технониколь до самого низа. Цвет серый

- Дровяная печь Grill’D Cometa Vega 180 Window
- Пожаробезопасное многослойное основание-сэндвич под печь из нержавеющей стали, минерита и базальтового картона
- Защита от нагрева из минерита
- Камни для печи (в подарок)

- Дымоход в сборе
- Проходной узел под дымоход из нержавеющей стали, термоизоляции, резинового уплотнителя с хомутом

- Входная дверь деревянная с окошком
- Стеклянная тонированная дверь в парилку
- Проливные полы на лагах с уклоном в сторону от печи из доски с возможностью замены
- Сливные отверстия в нижней точке, закрываемые клапанами. Отверстия между собой соединены фрезерованным в полу пазом глубиной 10 мм
- Спинки из липы или осины
- Светильник банный IP54 (2шт.) на среднем донышке
- Окно 300х400 мм сбоку (2шт)
- Панорамное окно 2080х1080 мм
- Полки из липы или осины согласно схеме расположения
- Спинки из липы или осины
- Трапик на пол из ели
- Отдельностоящий стол
- Отдельностоящий полок
- Окно ПВХ 1250х780 мм
- Окно 500х900 мм сбоку (2шт)
- Светильник банный IP54 (4шт) на среднем донышке
- Светильник банный IP54 (1шт) над столом
- Коробка с УЗО под полком (рядом с входной дверью)
- Выключатель 2 клавишный + розетка
- Выключатель 1 клавишный + розетка под столом
Детали
| Количество помещений | 2 |
|---|---|
| Длина козырька/крыльца | 200 мм |
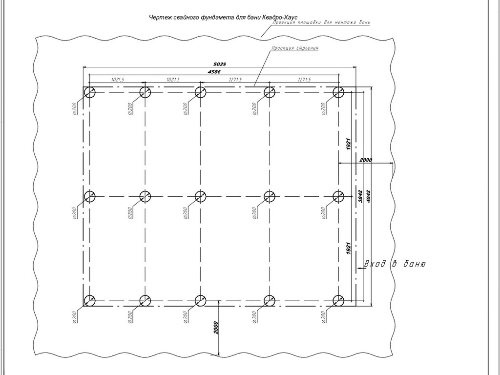
| Общая длина (наружный размер) | 5029 мм |
| Высота | 2755 |
| Ширина | 4060 мм |
| Вес | 2671 кг |
